|
|
|
||||||||||||||||||
空に近い私のログハウス |
||||||||||||||||||||
|
||||||||||||||||||||
|
||||||||||||||||||||
|
||||||||||||||||||||
|
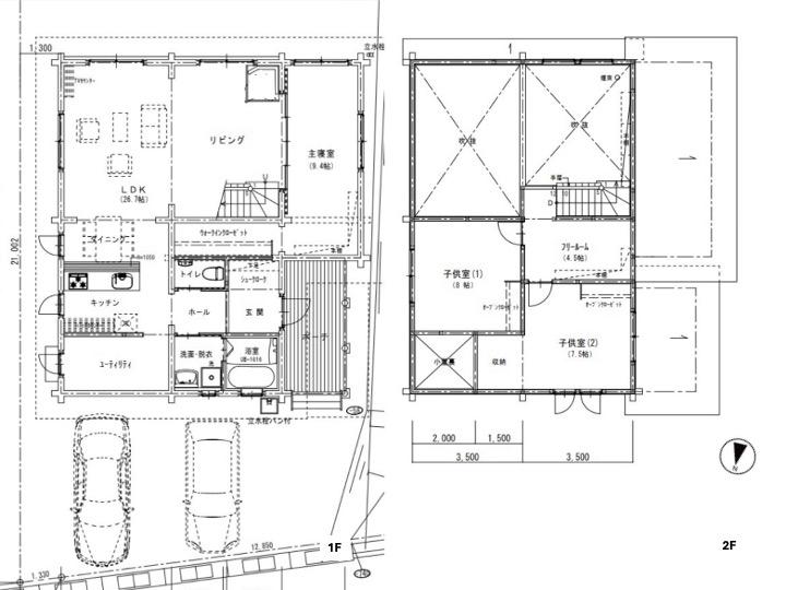
金沢市内から車で約30分。 到着して思わず手を広げて深呼吸。澄んだ空気とはこのことですか。 金沢のお隣、白山市にある獅子吼高原と目と鼻の先にあるログハウスのご紹介です。 撮影に伺った2月。一面、雪景色の獅子吼高原。 もうすぐ春になると桜が綺麗な場所です。シーズンに入ると空にパラグライダーが舞い、夜になると満天の星空。ここにいると色濃い四季を感じさせてくれます。 自然に寄り添う立地、色々な動物たちとも遭遇するそうです。 サル、キツネ、カモシカ、イノシシなど、、、ワクワクする人はワクワクするはず。動物たちだけではなく、近隣にはもちろん人も住んでいます。 山麓の住宅地となっており、麓には全国に約3,000社ある「白山神社」の総本宮、白山比咩神社があります。美味しいお蕎麦屋さん、ピザ屋さん、キッシュ屋さんなど徒歩圏内にはお店もちらほら。 高原という、でっかい公共の庭の隣にある本物件、石川県材の加賀杉を使ったログハウスとなります。 玄関を入った瞬間、まずは木のやさしい香りに包まれます。廊下を進むとスリッパ無しですりすりしたくなる木の感触。そして、リビングに進むと開放的な吹き抜けが。吹き抜けの大きな窓からはたっぷりと陽光が差し込みます。 冬は太陽の光であったかく、夏は高原からの建物を通り抜ける風が気持ち良くて、LDKではエアコン無しで過ごしていたそうです。 将来的には薪ストーブを置こうと、炉まわりと煙突は既に設置されています。これまで使っていなかった炉台には、ドラムを置いて家族で音楽を楽しんでいたそうです。 築4年のログハウス、間取りもしっかりと考えられています。ウォークインクローゼットやユーティリティなども設けられています。個人的には階段を上がったところのライブラリー(フリースペース)がお気に入り。 玄関ポーチや広々とした裏庭の使い方は、皆様、容易に想像をいただけるかと。ロマンが詰まっています。 このエリアは自然だけではなく、しらやまさん(白山比咩神社)の門前町である鶴来も車ですぐの場所にあります。古くからの酒蔵や醤油蔵など残る街で、最近では古民家を再生したカフェなどお店が続々と増え、移住者からも注目を集めています。 歴史ある神社と街の近くの自然に隣接する環境で、木々の中にいるように住まう日常、そして時を重ねるごとに自身も家も円熟味が増していく楽しみ。ポジティブに自然体に自由に過ごして頂ければ。 |
![]() |
|
| 木の中にいるように暮らすログハウス |
|
| 石川県材の加賀杉を使われています |
|
| 2階のライブラリー(フリースペース) |
|
| 無垢材なので、こたつで寝転んでも床が気持ち良い |
|
|
| >>大きな地図で見る  |
| 価格 | 3,900万円 | 建物面積 | 124.78㎡ |
| 管理費 | なし | 修繕積立金 | なし |
| 所在地 | 白山市八幡町 | ||
| 交通 |
鶴来駅 徒歩31分 コミュニティバス「めぐーる」八幡町 徒歩5分 |
||
| 建物構造 | 木造 2階建て | 所在階 | |
| 築年 | 2022年 | 土地権利 | 所有権 |
| 敷地面積 | 336.46㎡ | 都市計画 | 市街化区域 |
| 用途地域 | 準工業地域 | 建蔽率/容積率 | 60/200 |
| その他費用 | 取引態様 | 媒介 | |
| 設備 | 上下水道/プロパンガス/電気/モニター付インターホン | ||
| 備考 | 地目:宅地/施工会社:(株)北陸リビング社/総戸数:1戸/現況:居住中 2026年4月以降空室/引渡時期:相談/主要採光面:南向き/薪ストーブ用炉まわり、煙突あり(本体は設置されていません)/ログハウス/庭付き/駐車場あり | ||
| 情報修正日時 | 2026年3月6日 | 情報更新予定日 | 2026年3月21日 |
あなたにおすすめの物件


