|
|
|||||||||||||||||||
半分くらして、半分ひらく |
||||||||||||||||||||
|
||||||||||||||||||||
|
||||||||||||||||||||
|
||||||||||||||||||||
|
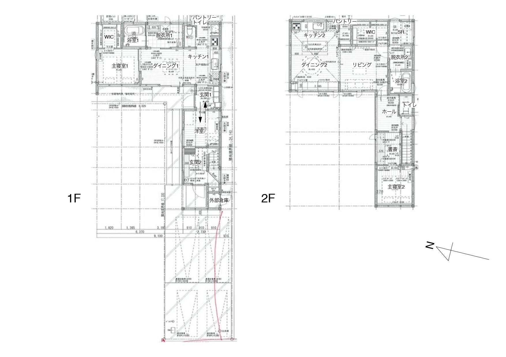
二世帯住宅です、と言われると、家族で住み分けるイメージが先に立ちます。でもこの建物は、少し違う使い方のほうがしっくりきます。 場所は金沢市古府。国道8号線がすぐそこを走る、いわば北陸の動脈のそば。周囲には整備工場や倉庫、住宅。用途がきれいに分かれていない、混ざり合った風景の中に、この建物はあります。 鮭色。 最初は「なぜこの色なんだろう」と思うはずです。でも、見ているうちにだんだんと馴染んでくるから不思議。むしろこのエリアだからこそ成立している色なのかもしれません。 建物の脇から奥へ入るアプローチ。そして現れる、手前と奥、2つの玄関。手前の玄関を開けると、外と同じ鮮やかなターコイズブルー。中と外が反転したような感覚。 オーナーが旅先で見た建築から着想を得たというこの色使いは、いわゆる“日本の住宅らしさ”から少し距離を置いています。 1階は玄関+4.5帖の一室。ただしこの部屋、もう一方の玄関側と行き来ができるつくり。分けることも、つなぐこともできる。この物件の肝かもしれません。 2階へ上がると、一転してしっかり暮らしのステージ。 LDK、水回り、書斎、そしてその奥に主寝室。書斎は明るく、気持ちよくこもれるサイズ感。主寝室はコンパクトで、落ち着き重視。 そしてLDK。ここも、鮭色。 ただ、アールを描く壁がやわらかさをつくっていて、気づけば居心地は悪くないどころか、むしろ落ち着く。 使い勝手の良いキッチンに、アイランドカウンター。大きな窓からの光。あとはもう、好きな家具を置いて完成させてください、という余白。 水回りも清潔で明るい。こういうところがちゃんと気分を上げてくれるのは、やっぱり大事です。 さて、もう一つの世帯の空間。 こちらは対照的に、とてもシンプル。派手さはないけれど、素材のまとまりがよくて、じわじわ良さがくるタイプ。長く使っても飽きなさそうです。 普通に二世帯住宅として住む、もちろんそれで成立しています。ただ、それだけだと少し惜しい気もしてしまうのです。 例えば、料理教室。シンプルで使いやすいキッチンを中心に、人が集まる場にする。 例えば、トリミングサロンや小さな美容室。予約制でゆっくり回す、生活に近い距離の仕事。 あるいは、住まいとは少し切り分けたワークスペースやアトリエ。わざわざ“店舗を借りる”ほどでもないけど、自宅の中だけに閉じるのも少し違う。そんな人にちょうどいい距離感です。 住む場所と、ひらく場所。完全に分けることもできるし、ゆるくつなげることもできる。この「調整できる関係性」こそが、この建物のいちばんの魅力かもしれません。 二世帯住宅という枠に収めるよりも、暮らしと何かを少しだけ外にひらくための器として。 ここで何を始めるか。その前提から、一緒に考えたい物件です。 |
![]() |
|
| 大きな窓があると開放感も増します |
|
| 脱衣所 明るく清潔感があると気分も上がりますね |
|
| 1階DK 約11帖の広さ |
|
| 鮭色の外観 駐車スペースは4台ほど停められます |
|
|
| >>大きな地図で見る  |
| 価格 | 4,130万円 | 建物面積 | 131.40㎡ |
| 管理費 | なし | 修繕積立金 | なし |
| 所在地 | 金沢市古府2丁目 | ||
| 交通 | 北鉄バス 古府 徒歩4分 | ||
| 建物構造 | 木造 2階建て | 所在階 | |
| 築年 | 2021年 | 土地権利 | 所有権 |
| 敷地面積 | 161.92㎡ | 都市計画 | 市街化区域 |
| 用途地域 | 準工業地域 | 建蔽率/容積率 | 60%/200% |
| その他費用 | 取引態様 | 媒介 | |
| 設備 | オール電化/システムキッチン/IHコンロ(3口)/食器洗浄機付き/上下水道/カメラ付きインターフォン/駐車場付き/追焚機能浴室/温水洗便座/倉庫付き | ||
| 備考 | 現況:空室/引渡時期:即可/現状渡し/バイク置場あり/駐車場あり(4台) | ||
| 情報修正日時 | 2026年3月19日 | 情報更新予定日 | 2026年4月30日 |
あなたにおすすめの物件


