|
|
|||||||||||||||||||
寄り添う中庭 |
||||||||||||||||||||
|
||||||||||||||||||||
|
||||||||||||||||||||
|
||||||||||||||||||||
|
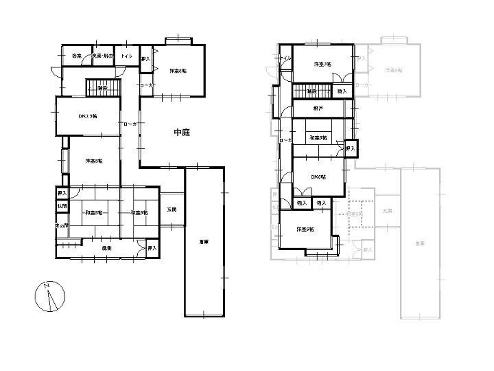
①庭付き戸建ての②広めの住宅で②2世帯で住むことも検討中③猫や犬と一緒に暮らしたいし④趣味の道具をたくさん置ける納屋兼作業場も欲しいし⑤駐車場2台分もマスト。 理想の家探しで考える希望の項目はたくさん出てきますが、それに「合致!」のチェックを多くつけることができる物件というのは少ないのではないかと思います。 今回ご紹介する物件はそんな家探しの希望に寄り添うことができるかも。 金沢市玉鉾。まちなかから少し離れた住宅街の一角に佇む和風住宅。門構えや庭の設えから、格式と同時に温かみを感じます。 懐かしさと優しさを感じる和風住宅はコの字型の建物配置。「コ」の中には和風の中庭。建物の中庭に面した部分は全て開口になっており、家の中から庭を感じることができます。外部からは見えないので、縁側で黄昏たり昼寝したり。人目を気にしなくて良いのが中庭の良いところです。 そしてこちらの物件、2世帯住宅にとして使われていた履歴もあり1階2階それぞれにキッチン設備とトイレがあります。6部屋+1LDK+1DKと部屋数も多いため、また2世帯で使うも良し、1階を店舗などにして2階に住むも良し、活用の幅が広がります。 また、悠々サイズの納屋兼作業場もあり、バイクや自転車、日曜大工、釣りの道具置き場など様々な趣味活動に対応できるのも嬉しいポイント。 現オーナー様がペットと共にお住まいされていることから壁紙など内装の劣化は見られますので、自分好みにリフォームをすることをお勧めします。 周囲は田園も残る静かな住宅街です。米丸小学校まで徒歩7分、高岡中学校まで徒歩19分なので、お子さんが多いご家庭にもマッチするかと。 希望の項目リストにチェックしながら出会う家探しは、住んでからの満足度が高いのではと思う今日この頃です。 ※現オーナー様居住中のため内見は要予約です。余裕を持ってご予約ください。 |
![]() |
|
| 和の門構え |
|
| 居室から中庭を観る |
|
| 通用門飾り |
|
| 玄関アプローチも石と緑の良い佇まい |
|
|
| >>大きな地図で見る  |
| 価格 | 2,880万円 | 建物面積 | 209.40㎡ |
| 管理費 | なし | 修繕積立金 | なし |
| 所在地 | 金沢市玉鉾 | ||
| 交通 | 北鉄バス「米丸住宅」バス停 徒歩4分 | ||
| 建物構造 | 木造/瓦葺き 2階建て | 所在階 | |
| 築年 | 1986年 | 土地権利 | 所有権 |
| 敷地面積 | 296㎡ | 都市計画 | 市街化区域 |
| 用途地域 | 第一種住居地域 | 建蔽率/容積率 | 60/200 |
| その他費用 | 取引態様 | 媒介 | |
| 設備 | 上水道/下水道/プロパンガス/電気 | ||
| 備考 | 地目:宅地/総戸数:1戸/現況:居住中/引渡時期:相談/現状渡し/残置物は撤去します/更地渡し応相談/庭付き/バイク置場あり/駐車場あり(2台) | ||
| 情報修正日時 | 2025年10月18日 | 情報更新予定日 | 2025年12月17日 |
あなたにおすすめの物件


