|
|
|||||||||||||||||||||
仕上げは暮らしの中で |
||||||||||||||||||||||
|
||||||||||||||||||||||
|
||||||||||||||||||||||
|
||||||||||||||||||||||
|
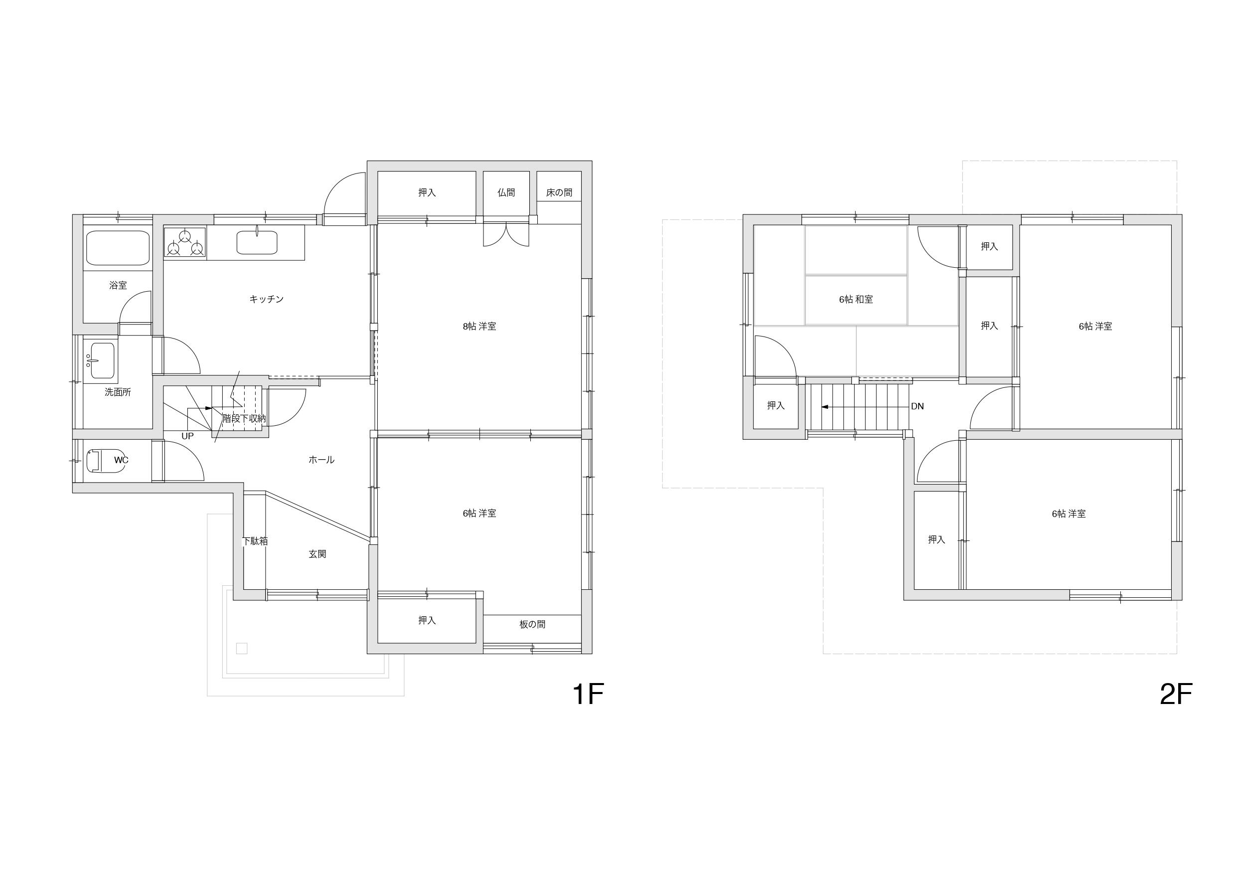
便利さだけで選ぶなら、もっと他にあるかもしれません。 でも「暮らしをつくる過程ごと楽しみたい人」には、この家はちょっと特別です。 場所は津幡町。金沢市とかほく市の間にあって、派手じゃないけど暮らしやすい。日々の買い物や通学にも無理がなく、子育て世代が自然体で暮らせるエリアです。 今回の物件は、ちょっと珍しい“DIY可能”な賃貸の一軒家。 すでに住める状態でありながら、「どうぞ好きにいじってください」と言わんばかりの懐の深さがあります。 間取りは3LDK。4〜5人家族でも無理なく暮らせるサイズ感。そして室内は、いい具合に昭和の空気を残しています。 とはいえ、ただの古さではありません。 2026年4月に、お風呂・脱衣所・リビングはオーナーがしっかりリフォーム済み。水回りと日常の中心が整っているのは、正直かなり嬉しいポイントです。 一方で、キッチンはあえてそのまま。 このレトロな雰囲気、嫌いじゃない人にはむしろご褒美かもしれません。手を加えるか、そのまま楽しむか。ここはセンスの見せどころ。 南向きのリビングは、隣に建物がないおかげで日当たり良好。気持ちいい光が、ちゃんと入ってきます。 2階には3部屋。すべて収納付き。洋室の壁紙には、どこか哀愁。これもまた、この家の“味”として活かしたくなるポイントです。 駐車場は2台分。さらに建物の裏には、家庭菜園もできそうな庭つき。土いじり、できます。 この家は、完成された快適さを求める人には向いていません。 でも、「自分の暮らしに合わせて変えていく余白」を求める人には、しっくりくるはず。 住まいを“消費”するのではなく、“育てる”。 そんな感覚にピンときたら、一度見てみてください。 |
![]() |
|
| 程よく残る昭和感 |
|
| 畳から板間に改装しました |
|
| 2階洋室:壁紙が良い味を出してます |
|
| 外観:駐車スペースは2台分あります |
|
|
| >>大きな地図で見る  |
| 賃料 | 8万円 | 建物面積 | 95.61㎡ |
| 敷金 | 2ヶ月 | 礼金 | 1ヶ月 |
| 償却 | なし | 管理費 | なし |
| 所在地 | 河北郡津幡町中須加は | ||
| 交通 | 中津幡駅 1.8㎞(車約5分) | ||
| 建物構造 | 木造 2階建て | 所在階 | |
| 築年 | 1983年 | 取引態様 | 媒介 |
| 設備 | 北陸電力/上下水道/LPガス/エアコン1台 | ||
| 備考 | ペット不可/定期借家契約(期間:3/再契約:相談)/現状渡し/令和8年4月一部リフォーム済み/室内の改装は可能(改装内容は要相談)/町費別途/保証会社加入要/庭付き/バイク置場あり/駐車場あり(建物裏のコンクリート面には駐車禁止)/要火災保険契約 | ||
| 情報修正日時 | 2026年4月25日 | 情報更新予定日 | 2026年5月24日 |
あなたにおすすめの物件

