|
|
|
||||||||||||||||||||
海傍のリノベハウス |
||||||||||||||||||||||
|
||||||||||||||||||||||
|
||||||||||||||||||||||
|
||||||||||||||||||||||
|
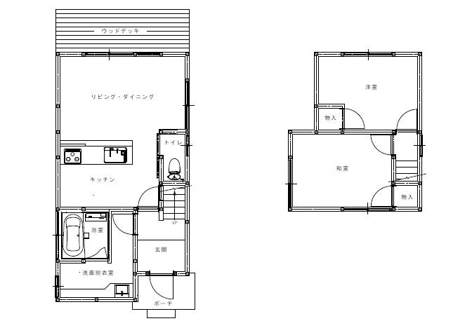
無垢とタイルと、海そばの、このまちらしい淡い配色の空間。 内灘より、リノベーション賃貸戸建のご紹介です。 この物件の近くにある工務店さんが手掛けられました。 耐震改修をしっかり施した上で、2020年にフルリノベーション。元々和室二間だったところは、広々としたキッチンスペースを設けたLDKに。パイン材のフローリングに、オーク材で仕上げたキッチンカウンターのリビングダイニングは、無垢に囲まれ、ほんと居心地が良いです。 狭かったお風呂からゆったり入れるユニットバスにするため、結果的に生まれたL字の洗面スペースは、リノベならではの間取りかと。 一見ただの洗面スペースだけど、個室感があり、またモザイクタイルが特徴的な造作の洗面台が温かみのある空間にしてくれています。 2階の和室はあまり見た事のないマリン系。マチと建物に溶け込む可愛げのある配色は、内灘在住の波乗りもする工務店さんだからこその塩梅。 金沢駅から車で約20分、内灘海岸まで車で約2分の立地。このエリアはアクティブなスポットが充実しています。つり公園、海でマリンスポーツ、スケボーパーク、ゴルフ場、乗馬クラブ、どれも車で5分圏内。 建物の感じ、広さをとっても、新婚さんやお子様が生まれるタイミングのご家族など、新たな生活を想像しやすいお家なのかと。 心地よい空間で家族と過ごしながら、内灘ライフをアクティブに楽しんでいただければ。 |
![]() |
|
| 手掛けたのは、内灘の工務店、ランダーワークスさん |
|
| 余裕のあるスペースに配置されたタイルが良い味出してる造作キッチン |
|
| 飾り棚など可愛げのある玄関 |
|
| 2階6帖の和室は、マリン系 |
|
|
| >>大きな地図で見る  |
| 賃料 | 8万5,000円 | 建物面積 | 59.96㎡ |
| 敷金 | 2ヶ月 | 礼金 | 1ヶ月 |
| 償却 | なし | 管理費 | なし |
| 所在地 | 河北郡内灘町字千鳥台 | ||
| 交通 |
北陸鉄道浅野川線「内灘」 徒歩14分 内灘町コミュニティバス「千鳥台公民館」 徒歩4分 |
||
| 建物構造 | 木造 2階建て | 所在階 | |
| 築年 | 1980年 | 取引態様 | 媒介 |
| 設備 | 北陸電力/上下水道/LPガス/エアコン | ||
| 備考 | ペット不可/定期借家契約(期間:応相談)/2020年12月リノベーション完成/掲載写真は前回掲載時のものとなります/家具・照明等は撤去済/駐車スペース(コンパクトカーサイズ)あり/町費別途/保証会社加入要/内見開始日:2026年5月15日〜/入居可能日:2026年6月1日以降(予定)/住居兼事務所可/要火災保険契約 | ||
| 情報修正日時 | 2026年4月7日 | 情報更新予定日 | 2026年4月30日 |
あなたにおすすめの物件


